Das Gruppenhaus im Schwarzwald steht zum Verkauf
Freizeit- und Seminarhaus
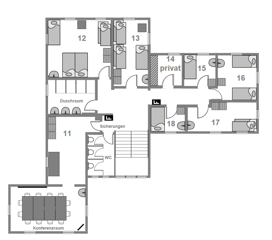
Unser Haus befindet sich in Altensteig, einem malerischen Städtchen im Schwarzwald mit einer sehenswerten Altstadt und einer Burg aus dem 13. Jahrhundert. Altensteig bietet zahlreiche Sport- und Freizeitmöglichkeiten sowie alle notwendigen Einkaufsgelegenheiten. Das Haus liegt idyllisch direkt an der Nagold. Es hat 39 Betten in 1- bis 5-Bett-Zimmern, alle mit fließend Warmwasser. Es gibt verschiedene Aufenthaltsräume und ein großes Freigelände mit Feuerstelle. Es steht eine geräumige Profiküche mit Industriespülmaschine zur Verfügung.
13 Zimmer
39 Betten
2 Seminarräume
Gastronomieküche
Große Grillstelle
Parkplätze
Objektübersicht
Zum Verkauf steht ein charmantes Freizeit- und Seminarhaus, mit Werkstatthaus, Nebengebäude, Hofraum, Gemüsegarten und Grünland des Jugendwerks der AWO Württemberg e.V. in idyllischer Alleinlage direkt an der Nagold. Das Objekt eignet sich ideal für Gruppenfreizeiten, Seminare, Workshops oder soziale Einrichtungen. Angeschlossen ist noch ein Wohnhaus für Haus meister*innen. inkl. Lagerräume
Lagedaten
Adresse: Waldfrieden 1, 72213 Altensteig
Grundstücksgröße: 5.832 m²
Lage: ruhige, naturnahe Umgebung; direkt an der Nagold
Grundbuchdaten: Grundbuch von Altensteig, Blatt 13192, lfd. Nr. 1
Katasterangabe: Gemarkung Altensteig, Flurstück 1251
Objektbeschreibung
Das Hauptgebäudegebäude wurde ursprünglich um 1892 errichtet, 1960 kernsaniert und anschließend mehrfach modernisiert. Es verfügt über insgesamt 481 m² Nutzfläche, die als Freizeit- und Seminarhaus genutzt wurden. Es besteht aus einer Gastronomieküche inkl Speisekammer mit einer Kapazität für bis zu 100 Personen, Speise- und Cubraum, Büro, Konferenzraum, 12 Mehrbettzimmern inkl. Waschbecken für 38 Personen, 1Einzelzimmer inkl. Badezimmer en Suite, 2 Putzkammern, 3 Toilettenräume mit insg. 7 Toiletten, ein Duschraum mit 4 Duschen
Das Nebengebäude wurde ursprünglich in den Jahren 1856/57 als Scheune errichtet und im Laufe der Zeit mit Sorgfalt zu einem Wohnhaus umgebaut und modernisiert. Heute präsentiert es sich als charmante Wohneinheit mit insgesamt fünf Zimmern, einer Küche sowie einem Badezimmer. Im Erdgeschoss stehen zudem drei praktische Lagerräume zur Verfügung, die vielseitig genutzt werden können – sei es als Abstellfläche, Werkstatt oder für Hobbyzwecke. Die Wohnfläche Nebengbäude beträgt insgesamt ca. 95,04 m² und bietet ein behagliches Wohnambiente und individuellem Charme.
Ausstattung und Modernisierungen Hauptgebäude
– Moderne Gasheizung (2017)
– Fenstererneuerung (2013)
– Außendämmung (2013)
– Sanierung der Sanitärräume (2018)
Rechtlicher Hinweise
Auf dem Grundstück besteht ein Leitungsrecht für einen Schmutz- und Regenwasserkanal. Ein Schutzstreifen von ca. 840 m² ist von Bebauung freizuhalten.
Besonderheiten
– Hoher Freizeitwert durch direkte Lage an der Nagold
– Großzügiges Grundstück in Alleinlage
– Potenzial für touristische, soziale oder pädagogische Nutzung
Kontakt
Bezirksjugendwerk der Arbeiterwohlfahrt Württemberg e.V.
Olgastraße 71, 70182 Stuttgart
0711/94572910
E-Mail: seminarhaus@jugendwerk24.de
Beschränkte Dienstbarkeit:
Zu Gunsten der Stadt Altensteig besteht eine beschränkte persönliche Dienstbarkeit für einen Schmutzwasserkanal sowie eine Grunddienstbarkeit für einen Regenwasserkanal auf dem Grundstück. Zur Bestellung einer Dienstbarkeit ergibt sich, dass rechts und links des Kanals eine Fläche von jeweils 1,5 m, insgesamt somit 3 m, nicht bebaut werden dürfen. Die Länge des Kanals beträgt rd. 280 lfm, so dass sich ein Schutzstreifen von 3 m Breite und einer Länge von 280 m ergibt. Insgesamt ist somit eine Fläche von 840 m² von einer Bebauung freizuhalten.
Objektpreis: Verhandlungssache
Es gibt Fragen oder möchten einen Termin vor Ort vereinbaren?
Kontakt
seminarhaus@jugendwerk24.de
0711 94 57 29 10
